Loggia House: Brazilian Brutalism in Kensal Rise
Words by Hannah Nixon
“When we first walked in, I said there was absolutely no way,” recalls Roberta of the rundown Victorian terrace her husband, Anthony, was keen for their young family to move into. After years living in the US, between New York and California, the couple were ready to put down roots in London, with a full-scale renovation high on Anthony’s agenda.
“I’d always wanted to take on a major renovation,” he says. “I didn’t grow up particularly interested in architecture or design, but over the years we lived in so many different places and were inspired by them in different ways. It felt like an opportunity to make our mark.”
Both working at an advertising agency, “We work with creatives rather than being creatives ourselves,” Anthony notes, they were accustomed to shaping ideas through a brief. So when conversations about their future home began, Anthony turned to PowerPoint.
“He’s very specific about what he likes,” Roberta smiles. “I remember he put together this beautiful mood board for the entire house. We showed it to someone and they said, ‘Oh, that’s what the architect made for you, right?’ And I was like, no — that was just the brief.”
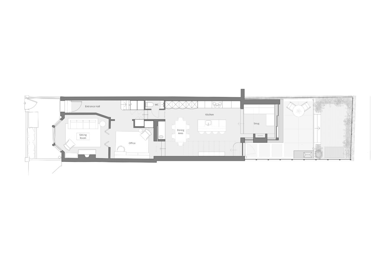
Perhaps most striking is just how faithfully Anthony’s ideas have translated into the finished home. Standing in their newly created open-plan kitchen, polished concrete underfoot and stained oak veneer cabinetry warming the space, it’s as though the house has moved seamlessly from mood board to real life.
To help realise their vision, the couple turned to House of EM, the architectural practice founded in 2020 by Emma Bodie and Matthew Sanders, who met while working as directors at Michaelis Boyd. Having known each other for several years, Matthew and Anthony had long discussed collaborating at some point and, when the opportunity arose, were understandably cautious about how to balance the shift from friendship to client relationship.
“Initially, when we were presenting our designs, it was Emma and I,” recalls Matthew. “But quite early on, it became clear that the best thing for the project was for me to take a step back. If you are working with a friend, how honest can you really be when communicating what you like and don’t like about their work? We did not want anyone to feel awkward, so we handled it by me being less directly involved.”
“But still involved in the background,” Emma adds.
The studio champions context and collaboration, so translating influences ranging from Brazilian practice Bernardes Arquitetura to the mid-century modernism of Richard Neutra and Charles Eames into a typical north London Victorian terrace house demanded nuance and clarity.
“We began by presenting a number of options that were quite different from Anthony’s initial ideas,” Emma explains. “I suppose we wanted to test the brief, and we were not entirely sure how best to approach it because it is, of course, a very different style of building. When exploring something that felt quite brutalist on the rear elevation, we looked at different ways to soften it.”
The answer came in the form of a sunken loggia, set down into the ground and complete with a fireplace and wraparound glazing that can be fully drawn back to create a seamless connection with the garden.
“We loved the idea of stepping down into a sunken seating area,” Emma continues. “As soon as Anthony suggested it, we were so excited because it just made sense. We prefer to define the zones, and something as simple as a change in level makes a huge difference.”
The loggia’s material language is anchored in concrete, poured in-situ by their builder. “The contrast between the geometry at the back and the Victorian detailing at the front was important,” Anthony recalls. “We didn’t want to recreate the past.” Instead, the design creates a dialogue between indoor and outdoor living. When the glazing is fully drawn back, the loggia evokes not only Roberta’s Brazilian heritage but also the relaxed 1970s “conversation pits,” reshaping how the family uses the space. “In the summer, we want to be outside,” Roberta explains. “It can get a bit late for the kids, but they still want to hang out with us, so we’re having a drink outside while they watch a film on the sofa.”
Choosing not to place a dining room at the edge of the garden was a deliberate decision, one Matthew recalls was guided by questioning conventional thinking. “Having a comfortable seating area at the edge of the garden felt far more appealing than a dining table,” he explains. “That’s where they spend most of their time now, sitting against the glass, gazing out into the garden or back towards the house. It’s a place of comfort. A dining table would have you sitting upright, looking down. We wanted a space where you can look around, not just down.”
Emma nods in agreement. “Lots of houses have sliding doors onto a garden, which is lovely in summer, but what about in winter? Here, the kids can climb over the ledge, moving between inside and out, and the dog goes in and out too. It just makes for a much more playful home.”
Now with the build complete and friendships intact, Anthony and Roberta reflect on the lessons learned. “I wouldn’t move out and live in a little flat for a whole year, especially with the kids still living with us,” Roberta says, smiling. Anthony, meanwhile, looks further ahead. “I’d love to take on the challenge of a completely different style of house. We’ve talked about getting a place in Brazil and doing something in a totally different type of home, in a very different environment.”
House of EM share a similarly positive outlook. “We definitely want to work with people who are creative and interested in doing something a bit different and fun,” Emma explains. “What’s most important to us is the context — the site and its surroundings — and responding to that to create truly unique spaces. If we can achieve both, then we feel we’ve created something really special, and ultimately, a happy client.”
Learn more about House of EM







