I
N
Information
Full Details
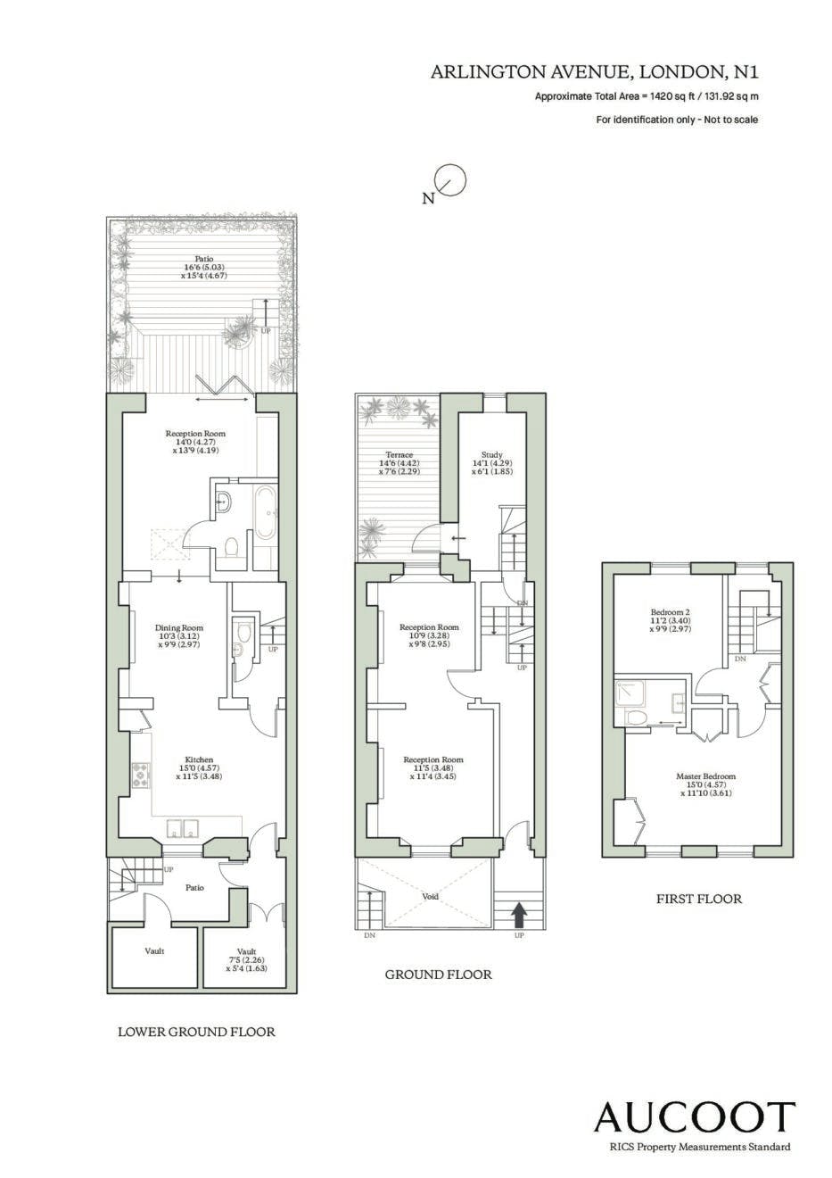
Tucked away on one of the most peaceful streets in the Arlington Conservation Area, this beautifully restored three-bedroom, Grade II-listed Victorian townhouse offers an exceptional blend of period character and contemporary refinement. Complete with a secluded private garden as well as a roof terrace, the home is arranged over four carefully considered levels and finished to an exacting standard throughout.
Accessed via a raised ground floor entrance, the house opens into a wonderfully light dual-aspect reception room. Elegant original features including intricate cornicing, sash windows and twin fireplaces, sit alongside a calming, neutral palette, creating a space that is both generous and welcoming.
Ascending the stairs there is a study, which can also serve as a third bedroom and which opens onto a private terrace, an ideal spot for morning coffee.
The first floor is home to two well-proportioned bedrooms. The principal suite is particularly serene, complete with bespoke joinery and a beautifully detailed en-suite bathroom finished terrazzo tiles and brass fittings. The principal bedroom also enjoys tranquil, leafy views across the gardens of Arlington Square.
On the extended lower ground floor, a spacious kitchen and dining room unfold towards the garden via full-width bi-fold doors, bringing a strong sense of inside-outside living. There’s also a second bathroom, along with access to the front vaults, which house a practical utility space and valuable additional storage.
The garden itself is a rare find in this part of town. It has two levels and has been thoughtfully landscaped. The south-east facing patio is dappled with sunlight through the morning and afternoon and has areas for dining and in-built seating.
-
EPCGrade II Listed View
Floorplan
-
Area (Approx)
1420 sq.ft/131 sq. m

Map
Arlington Conservation is well-served by a variety of independent cafes and coffee shops, including the beloved Pophams a local favourite known for its expertly brewed coffee and perfectly baked sweet treats. For those who appreciate fine dining or relaxed meals out, the nearby pubs and restaurants offer plenty of choice. The Baring pub, a classic in the area. For those seeking something a little more unconventional, a visit to 69 Colebrooke Row is a must. Tucked away just off the main thoroughfare, this hidden underground gem offers a unique blend of intimate jazz music and expertly crafted cocktails.
The proximity to De Beauvoir offers a wealth of green spaces, independent shops, and a laid-back village atmosphere, while Old Street, just a short stroll away, provides direct access to the tech hubs of Shoreditch, creative agencies, and bustling nightlife. Whether you’re seeking culture, community, or simply a place to unwind, Coleman Fields places you at the crossroads of it all, offering a blend of quiet residential living with the buzz of one of London’s most exciting areas just around the corner





















































