I
N
Information
Full Details
Positioned on a quiet cul-de-sac just off Dunstans Road, this beautifully presented four-bedroom home pairs period character with a modern rear extension. Set back behind a metal gate, the crisp white façade feels light and inviting, complementing the sash windows and elegant Victorian detailing.
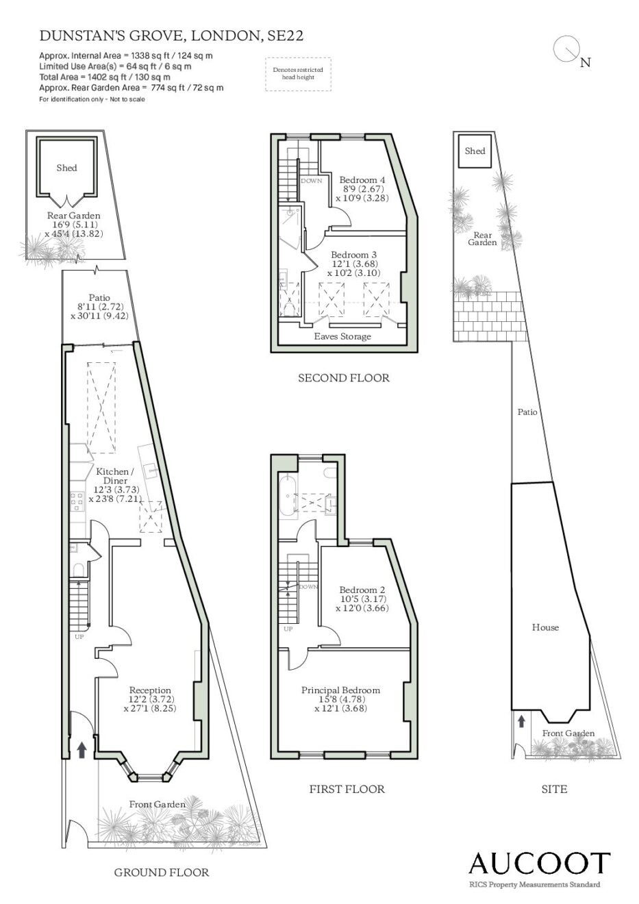
Inside, a sequence of thoughtfully arranged rooms unfolds, each feeling both generous in proportion and beautifully maintained. In the reception room, timber floors run underfoot while a fireplace with a wood-burning stove forms a natural focal point. Shutters frame the windows, allowing an abundance of natural light to filter through. To the rear, a cleverly conceived extension opens into a spacious kitchen and dining area, where sleek handleless cabinetry and expansive glazing lend a bright, airy atmosphere. A convenient WC is also located on this floor.
Upstairs, two double bedrooms and a contemporary family bathroom sit on the first floor, with the rear bedroom enjoying calm views over the garden and plenty of natural light. The top floor provides two further bedrooms, one with an en suite, generous eaves storage and roof lights that draw in soft daylight throughout.
At nearly 70 feet, the garden is a notable asset. Closest to the house is a sheltered terrace for outdoor dining and gatherings, with the rear lawn offering a quiet, almost private setting screened by mature planting.
-
Lease LengthFreehold
-
EPCTBC
Floorplan
-
Area (Approx)
Internal Area Appox 1402 sq ft / 130 sq m

Map
Dunstans Grove feels wonderfully peaceful yet is remarkably well connected to everyday life in SE22. Peckham Rye Park and Common’s 113 acres of greenery are moments away for weekend walks, runs and picnics, while Forest Hill Road and Lordship Lane offer a rich mix of independent cafés, bakeries, pubs and specialist stores just a short stroll from the doorstep. Local schools are well regarded, adding to the area’s enduring appeal for families. Goodrich Primary School is located on Dunstans Road, while Dulwich college is also close by.
There are plenty of excellent transport links including Honor Oak Park Overground providing direct access through Canada Water, Whitechapel and Highbury & Islington, and National Rail services into London Bridge and Victoria; Peckham Rye station is also easily reached by bus, adding further links across the city.























































