I
N
Information
Full Details
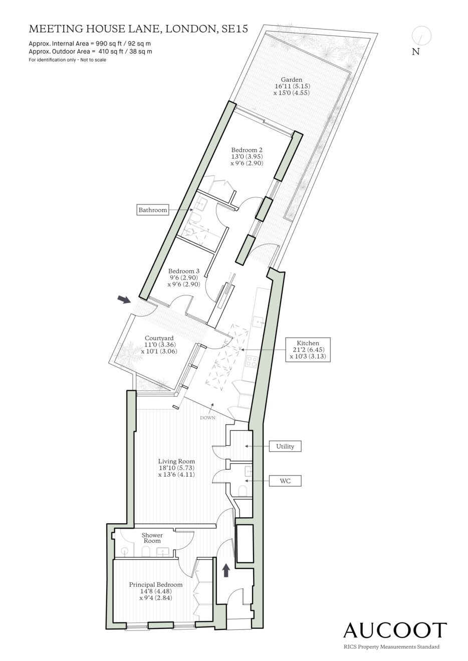
Located on a leafy street in Peckham, this three-bedroom apartment in a traditional Victorian terrace house has been elegantly reconfigured by Gruff Architects to extend deep into the original plot, creating welcoming spaces for both entertaining and quiet retreat. The design places particular emphasis on materiality, especially in the newly built kitchen and bedroom extension. A refined palette of finishes is complemented by an abundance of natural light, which floods the interior through extensive glazing throughout.
Entry is via the communal hallway, where terracotta hexagonal tiles lie underfoot. The eye is immediately drawn towards the light-filled living and kitchen area. Engineered oak floorboards run from the living room into the mirco-cement flooring in the kitchen, which looks out onto the first of the courtyard spaces. Natural light pours in through skylights set into the pitched roof, whose exposed, white-washed beams help reflect even more light into the room.
The kitchen features fronts made by bespoke joinery company BLOQ Design, painted in Tuscan Red by Little Greene. Integrated appliances run along one wall beneath a stone worktop and backsplash, accompanied by a bespoke plywood shelf ideal for displaying pottery and other treasured objects.
There are three bedrooms, with the principal suite located at the front of the plan in the original part of the building. Newly installed wooden sash windows are fitted with roller blinds that provide privacy while still allowing in the easterly light. The design comes into its own in the cleverly configured walk-in wardrobe, neatly tucked behind a wall next to the shower en suite. Finished with Mandarin Stone tiles and black fixtures and fittings, the shower room feels both spacious and filled with natural light.
In the newly created extension, there are two additional bedrooms and a family bathroom. Facing the internal courtyard, one of the bedrooms could also serve well as a study or nursery. At the rear, a larger bedroom features built-in wardrobes and expansive sliding doors that open onto a second courtyard, enclosed by evergreens and gravel-bound flooring. Recessed curtain tracks by Forest provide privacy and light control, though the space is naturally secluded, with no overlooking from neighbouring homes. The walls throughout the extension are finished in Slaked Lime and the contrasting Slaked Lime Mid by Little Greene.
The bathroom is fitted with a JTP shower head and fixtures, complemented by sage-green Domus I Colori matt tiles. A skylight positioned above the bath brings in generous natural light.
By the entrance, the apartment has its own metal storage case, large enough to accommodate a bike or buggy.
-
Lease LengthShare of Freehold
-
EPCB
Floorplan
-
Area (Approx)
Approx Internal Area 990 sq. ft./92 sq. m
Approx Outdoor Area 410 sq ft/38 sq. m

Map
Peckham is a thriving part of the city with a strong sense of community and a host of excellent cultural hotspots including the famous Peckhamplex cinema, Copeland Park & Bussey Building and the acclaimed Bold Tendencies. There’s a wealth of restaurants to choose from that celebrate a diverse range of cuisines; Lai Rai for delicious, experimental Vietnamese food, famed Italian spot Artusi and Yada’s Green Kitchen on Rye Lane.
Just a short walk away, Bellenden Road is home to a selection of independent shops, including the Review Bookshop, host of the annual Peckham Literary Festival each November. For a great pub atmosphere, locals enjoy The Montpelier, known for its jazz nights, as well as the popular Prince of Peckham.
Transport links are excellent, with Queens Road Peckham nearby on the Windrush line, providing connections to Dalston Junction and National Rail services to London Bridge and Clapham Junction. Numerous bus routes also offer easy access across the city and beyond.




















































