I
N
Information
Full Details
This four double-bedroom Victorian terraced home sits on a quiet, tree-lined residential street between Clapton and Stoke Newington. A comprehensive restoration and extension project by Partner London artfully balances restored original features with natural, sympathetic materials and considered detailing, creating a home well suited to modern lifestyles within its original Victorian fabric.
From the outside, the taupe-painted façade is anchored by the original arched, Palladian-inspired central sash window, while a row of diamond-shaped brickwork above adds a quintessential Victorian flourish and serves as a charming focal point.
Entrance to the house is via a front garden with its own private gate and a lush display of planting. A light-filled hallway leads into the main living spaces on the ground floor: a front living room and a dining room. Original features such as wooden floorboards and bay window shutters have been carefully revealed, while new additions, including cast-iron radiators, have been selected to blend seamlessly. This sensitive approach is reflected elsewhere, with new timber double-glazed sash windows installed throughout.
In the front room, ornate cornicing and an understated fireplace surround pair beautifully with a muted colour palette that enhances the room’s natural sense of light and airiness. The dining room, positioned at the heart of the home, has been decorated in a deeper hue, creating an inviting entertaining space and featuring wall-to-wall floating shelves and rattan-fronted cabinetry.
Beyond the dining space, through double doors, lies the kitchen, which has been comprehensively reimagined as an open-plan space. Ceilings have been raised and original beams exposed, while a light-feeding skylight, sash windows and elegant French doors make the most of the south-facing aspect, ensuring the room is filled with natural light throughout the day.
A palpable attention to detail runs through the kitchen in the choice of materials and finishes, including terrazzo worktops, antique brass taps and ironmongery, and bespoke cabinetry painted in complementary tones. Zonal lighting and a well-placed breakfast nook with banquette seating create a convivial space for both cooking and entertaining.
The south-facing garden has been designed to be enjoyed year-round, with a thoughtful mix of evergreen and seasonal planting. Indian sandstone paving has been incorporated into the scheme, which was conceived with minimal maintenance in mind but retains a lush, verdant feel.
The family bathroom on the first floor is a restful retreat, defined by a neutral palette and timeless materials such as marble wall tiles and encaustic floor tiles. A roll-top bath is positioned beside a sash window overlooking the garden, while a reclaimed marble-topped antique vanity, brushed nickel taps and fluted wall sconces provide sensitive, considered detailing.
There are two double bedrooms on the first floor, including the guest bedroom and principal suite, both finished with soft wool bouclé carpets. The principal bedroom is flooded with light from three curved sash windows and, as elsewhere in the house, pairs period detailing with a modern sensibility through custom built-in cupboards and warm, soft-toned walls.
A sympathetic loft conversion has been designed to integrate seamlessly with the original architecture. The stairs lead first to a bedroom, currently used as a study, which benefits from a large south-facing sash window. On the top floor is a generous double bedroom with dual-aspect dormer windows. These rooms were created with flexibility in mind, featuring sisal carpets and bespoke built-in bookcases. Also on this level is a shower room with a walk-in shower, finished in earthy-toned tiles with unlacquered brass accents.
Throughout the home, light and spatial flow have been carefully maximised, with considered storage integrated at every level. The result is a series of hardworking spaces well suited to living, working and entertaining, while still offering a calming retreat through soft tonal palettes, tactile textures and thoughtful material choices.
-
EPCC View
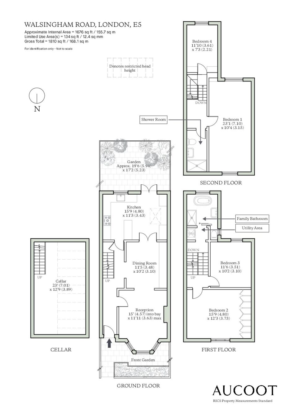
Floorplan
-
Area (Approx)
Approximate Internal Area = 1676 sq ft / 155.7 sq m
Limited Use Area(s) = 134 sq ft / 12.4 sq mm
Gross Total = 1810 sq ft / 168.1 sq m

Map
The immediate area offers excellent dining and drinking options, including 107 Wine Shop & Bar, Charles Artisan Bread, and My Neighbours The Dumplings on Lower Clapton Road. A short walk to the west leads to Stoke Newington which hosts a number of independent cafes, restaurants and shops.
The weekly food market on Chatsworth Road is about a fifteen-minute walk away, as is Stoke Newington Church Street. Other nearby amenities include Hackney Picture House, London Fields Lido, and the Grade-II* listed St John at Hackney, an eighteenth-century chapel and live music venue.
Green spaces such as Hackney Downs, Millfields, Hackney Marshes, Abney and Clissold Park are all in close proximity. For transport, the house is equal distance to Clapton station and Rectory Road station (0.3 miles). Both provide fast and regular Overground services to Liverpool Street. Hackney Downs (Overground) and Hackney Central (Overground) are also close-by (1 mile). Additionally, there are numerous bus connections nearby with routes to the city and West End.




















































