Close
Ash Row, Bude, Cornwall
£725,000
:
:
01
00
Thumbnails
P
I
N
01
00
:
:
To make the most of the views and the wonderful Cornish light, the bright, open-plan living space is positioned at the top of the house and boasts double height ceilings.

Information

Full Details

*Please note that photographs are of the show home.*

A short walk from Cornwall’s beautiful coast and overlooking the green expanse of a golf course, this six-bedroom home is part of an award-winning development of four modern houses, designed by Hogarth Architects. Minutes from the lovely Crooklets beach, you’ll find double height spaces, sea views, a stunning bespoke staircase, bedrooms with ensuites and ample storage for surf boards, buckets, spades and muddy boots, which all make for an exciting family house or the perfect second home with good holiday rental yields.

Built to high sustainability standards the contemporary design references the Victorian row houses and beach huts found in the area. To make the most of the views and the wonderful Cornish light, the bright, open-plan living space is positioned at the top of the house and boasts double height ceilings. Here you’ll find a high specification Poggenpohl kitchen with a large island providing additional storage and helping to subdivide the space. The stunning living area has a wood burner and a unique, long shuttered-concrete shelf. There’s also a study area and a decked terrace with views of the sea. A ladder takes you up to a mezzanine area above, useful as a studio space or playroom, or just for some extra storage. The lower levels of the house are reached via a stunning, bespoke, laser-cut steel and birch-faced ply staircase. Here you’ll find ensuite master bathrooms, bedrooms with hand crafted bunks, family bathrooms and additional terraces. A utility and store room at ground level which can also be accessed externally and is the perfect place to shed wetsuits or boots after a day on the beach. In addition, there is off street parking.

Crooklets Beach is popular with surfers and families. Located just to the north of Bude, the wide expanse of Crooklets and its golden sand (exposed at low tide) is bordered by rocky outcrops ideal for rock-pooling. The beach has great facilities, a play area, skate park, beach cafe, showers, amusements and pubs close by. Chosen by the Sunday Times as ‘best seaside town’ in July 2016 Bude town can be reached by a short walk over the Summerleaze Down or up the hill from the beach, where you’ll find shops, restaurants, pubs and cafes.

(Rental estimates can be provided on request)

  • Lease Length
    n/a
  • Service Charge
    n/a
  • EPC
    B

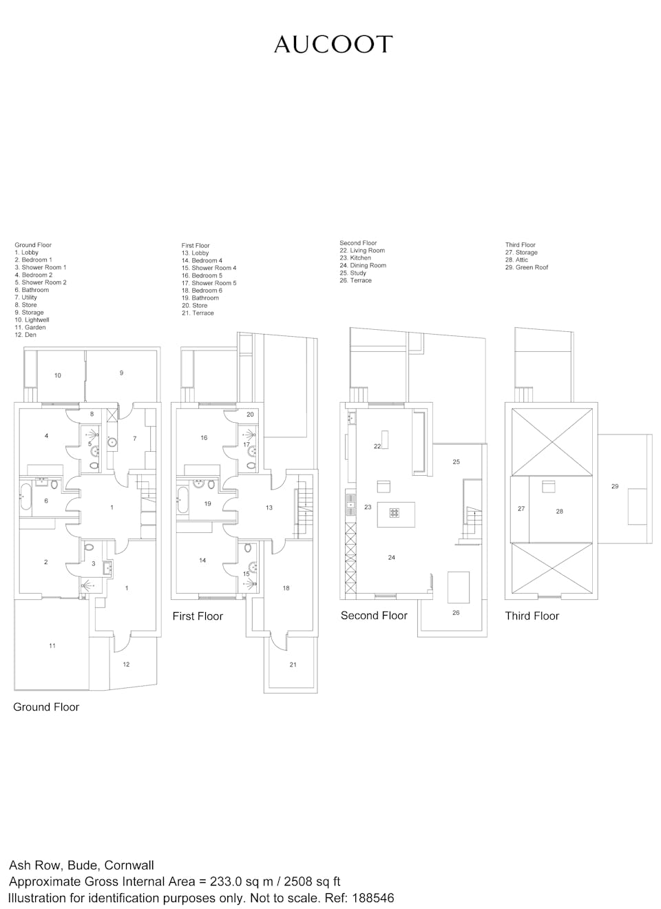
Floorplan

  • Area (Approx)

    2508 sq ft
    233 sq m

:
01
01
:

Map

Chosen by the Sunday Times as ‘best seaside town’ in July 2016 Bude town can be reached by a short walk over the Summerleaze Down or up the hill from the beach, where you’ll find shops, restaurants, pubs and cafes.

A short walk from Cornwall’s beautiful coast and overlooking the green expanse of a golf course, this six-bedroom home is part of an award-winning development of four modern houses, designed by Hogarth Architects.
Brochure.

Download Property PDF
(0.00 )

Viewings By Appointment.

T. 020 7112 4907
[email protected]

Share this property.