I
N
Information
Full Details
Playfully reimagined by the current owners in collaboration with Turner Architects to evoke the romance of a Tuscan veranda. Shortlisted for a "Don't Move Improve" award this five-bedroom Victorian terrace sits quietly on a peaceful residential street unfolding close to 2400 square feet across three floors.
Stepping into the front of the house, a traditional double reception room sets the tone, a calm, elegant space framed by original cornicing, deep bay windows and restored sash windows that invite light through both morning and afternoon. A wood-burning stove anchors the front half of the room, offering a quiet sense of comfort. Toward the rear, walls and joinery are finished in a rich navy, with bespoke built-in wardrobes and a striking visual fireplace, creating a moody, intimate contrast ideal for evenings or quieter moments. The symmetry starts through the arch connecting the double reception room and exceptional kitchen area while guiding the eye through house to garden.
A sunlit expanse defined by soft Romanesque arches and a material palette that feels at once grounded and uplifting. A generous island in natural timber offers a tactile counterpoint to the fluted cabinetry by Naked Kitchens and brass detailing, while an expanse of terrazzo-style flooring grounds the space with calm permanence.
Oversized tiles extend out into the garden, creating a seamless transition between indoor and outdoor spaces. The rear garden, landscaped by garden designer Marco O'Neil, is thoughtfully arranged with a few gentle steps that define the shift from an extension of the living space to a more secluded area for relaxation, surrounded by mature planting that offers a sense of privacy.
Set across the upper two floors, the sleeping quarters are thoughtfully arranged to balance privacy with natural flow. Five bedrooms are spread across both levels, each benefitting from generous proportions, considered detailing, and an abundance of natural light.
The first floor is home to the principal bedroom, a calm retreat alongside two further bedrooms, ideal for guests, children, or home working. A beautifully finished family bathroom serves this floor.
Upstairs, two additional bedrooms offering a sense of quiet seclusion with a shared second bathroom on this floor. Together, these floors provide a flexible layout, well suited to evolving needs, from growing families to those seeking dedicated space to work or unwind.
-
EPCTBC
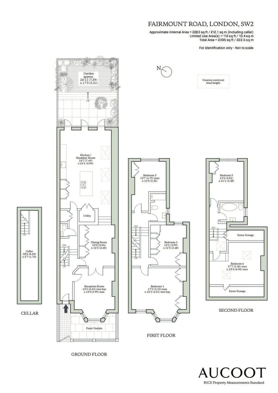
Floorplan
-
Area (Approx)
2395 sq. ft./222 sq. m

Map
The house is conveniently located a short walk from Brixton, a vibrant hub renowned for its diverse dining scene, independent boutiques and lively nightlife. Popular destinations such as Brixton Village, Market Row and Acre Lane offer an eclectic mix of global cuisine, artisan retailers and community-led enterprises. Local cultural landmarks include The Ritzy Cinema, Electric Brixton and the O2 Academy, all of which contribute to the area’s rich creative energy.
A notable recent addition is The Department Store, a beautifully restored 1876 Bon Marché building that now houses shared workspaces, Pure Vinyl record store, a community post office and Canova Hall, a stylish all-day restaurant and bar that has become a local favourite.
Clapham is also within easy reach and offers a complementary mix of character and charm. Clapham Common provides 200 acres of open green space, with walking paths, a picturesque pond and tennis courts. Nearby Clapham Old Town is lined with independent cafes and boutiques. Popular spots include The Dairy for modern British dining, No. 32 The Old Town for relaxed rooftop drinks and Venn Street Market for weekend food shopping. For coffee, Fields and Story Coffee are local staples. Studio Voltaire adds a creative edge to the area with contemporary art exhibitions and cultural programming.
Nearby Streatham provides an equally appealing mix of independent cafes, restaurants and shops, especially along Streatham Hill, just minutes from Palace Road. Highlights include Batch & Co Coffee, Hood Restaurant, Streatham Wine House and Art & Craft, known for its impressive selection of craft beers sourced from across London and beyond.
Excellent transport links place central London within easy reach. Brixton Underground Station on the Victoria Line provides fast, direct connections, while several bus routes offer convenient access across the city. Green spaces such as Brockwell Park and Tooting Bec Common are also close by, offering expansive grounds, a lido, tennis courts and weekend farmers’ markets. These parks provide a welcome contrast to city life and are ideal for outdoor activities and quiet moments alike.
Altogether, the location brings together the vibrancy and culture of Brixton, Streatham and Clapham, while maintaining a peaceful, residential atmosphere at its core.


























































