I
N
Information
Full Details
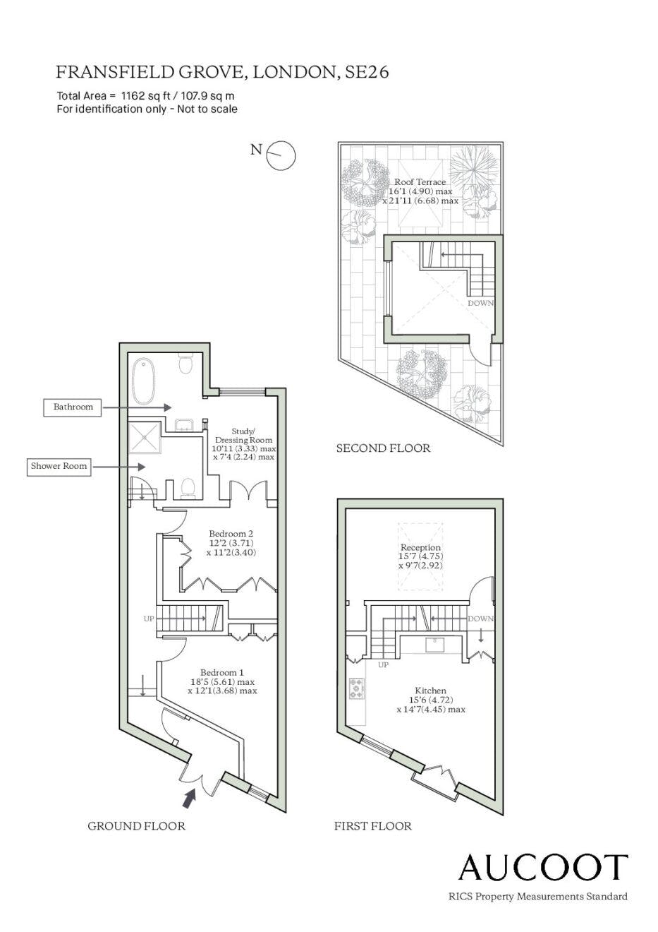
Nestled along a peaceful street in Upper Sydenham, this striking converted warehouse presents an unexpected architectural gem. Featuring an inverted layout, the two bedrooms are situated on the ground floor, while the living areas unfold above, culminating in a private roof terrace that crowns the home. Spacious and filled with natural light, the interiors are thoughtfully designed to create a harmonious flow.
Originally built in the mid-1870s by George Kemp, a prominent local builder and entrepreneur, the warehouse was an extension of his residence at 96 Kirkdale. Kemp expanded the property towards Fransfield Grove to accommodate his growing construction business. During its early years, the warehouse likely served as a central hub for materials and workshops. Over time, the surroundings have changed, but the building retains its distinctive historical charm.
A set of original warehouse doors provide an eye-catching entry from the street, framed against the building's red brick exterior. The entrance hall offers practical storage for coats and shoes, with additional concealed storage cleverly tucked beneath the stairs.
The main living spaces are located on the first floor, where large windows and skylights flood the rooms with natural light. In the living room, a dramatic skylight spans nearly the entire ceiling, while the adjacent kitchen features original Gothic-arched French doors that open onto a Juliet balcony with street views. The living area is anchored by a cast iron fireplace with a marble surround, and exposed timber beams soar overhead, lending warmth and texture to the room. Air conditioning ensures comfort during warmer months.
In the kitchen, marble accents continue with a sleek central island that doubles as a workspace and gathering point. Counters line both sides of the room, offering ample room for cooking and entertaining. The high ceilings and abundant light create an airy atmosphere, with integrated appliances, including a Bosch oven, discreetly built in. From here, stairs lead up to the secluded roof terrace.
On the ground floor, both bedrooms are located, with the main bedroom offering an intriguing design that includes a sunken seating area, which acts as a second lounge and connects to the en suite bathroom. Hidden storage, crafted from hardwood, is seamlessly integrated into the walls, enhancing the minimalist aesthetic. A family bathroom on this level features a large walk-in shower adorned with bold Scandinavian tiles, adding a touch of style. Both bathrooms benefit from underfloor heating for added luxury.
The jewel of the home is the expansive roof terrace, beautifully landscaped with a variety of potted plants and trellised greenery. Bamboo borders add privacy, although the terrace's elevated position ensures a sense of seclusion. Whether enjoying a quiet morning coffee or hosting a larger gathering, the terrace offers a perfect outdoor retreat. A large storage shed is discreetly positioned behind the house’s apex, providing practical outdoor storage solutions.
-
EPCD View
Floorplan
-
Area (Approx)
Total Area = 1162 sq. ft / 107.9 sq. m

Map
Sydenham High Street is just a short stroll away and offers a variety of pubs and independent coffee spots. Popular local venues include the acclaimed 161 wine bar, ranked #6 in The Times list of Britain’s best wine bars, Snuffles café, known for its dog treats, coffee, and natural wines, and The Moustache, a well-loved independent café. The area also features the Good Food Deli for fresh produce, a yoga studio, and a top-notch brewery. This part of London boasts expansive, beautiful parks like Sydenham Woods, which connects to Dulwich Park further north. The Horniman Museum and Gardens, known for its diverse collection and excellent café, is just a ten-minute walk away.













































