I
N
Information
Full Details
tldr:
A Georgian House of grand proportions. 4903 sqft, currently configured as six beds, four bath, gallery space and studio. The perfect investment for those wanting to put their mark on one of the biggest houses in Margate.
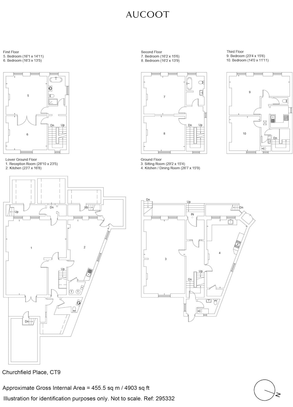
Gordon House is a remarkably characterful Grade II-listed home located on the fringe of Margate's centre, just minutes from the Main Sands and the railway station. Originally built in the 1790s as a Georgian family home with servants' quarters, Gordon House's 4903 square feet now feature six bedrooms, four bathrooms, a gallery space and studios across its five, thoughtfully renovated floors. Many of the original architectural features have been revealed and preserved, and later Victorian cosmetic additions saved, including marble fire surrounds, internal archways and doors, sash windows and wooden floorboards. This is a home that can be configured in many different ways and is now ready for its next custodian.
The home was once part of the Ancient Parish of St John the Baptist - which dates back to the 1500s - and had links with the nearby Grade I-listed Parish Church. This impressive space has since seen life as a women's refuge and a convalescence home for children, before becoming a private residential home once again in the mid- to late-1900s.
Lived-in Levels
A mixture of exposed and painted brickwork and render diverge Gordon House's imposing facade, which is set slightly back from the pavement behind original iron railings. The principal entranceway sits central on the raised ground floor and features a fanlight, reverse sign written by Margate's own Hermetic Sign Company. It opens into a generous vestibule, divided from the hallway by an early Victorian fluted glass door that's surrounded by complementary stained-glass windows - a taste of the colour and character to come.
The spacious hallway lies beyond, with the start of the home's continuing switch-back staircase set ahead to the left, and a further stained glass-adorned door ahead to the right that separates off a ground-floor shower room and WC, as well as direct access to the garden.
The main reception room is located to the right, which retains a warm feel despite its vast proportions. The original skirting boards, picture rails and dividing arch are dutifully complemented by a pair of white marble fireplaces across this double-sized space. A beautiful botanical mural embellishes one of the west-facing corners, meticulously hand-painted by Gordon House's current artist owner.
To the left of the hallway is a two-storey annex - thought to be a later structural addition - that hosts Gordon House's distinctive triangle-shaped kitchen. Designed with fluidity in mind, the kitchen mixes freestanding and built-in cabinetry with colourful, handmade Mexican terracotta tiles and hand-finished woods for a rustic edge. Clever use is made of the architecture's acute southwest-facing corner; one of the original street-level entranceways has been turned into a shelved and lit pantry. Proportions easily allow for a social-sized dining table, and a generous, full-height storage area to the east end of the room adds welcome convenience.
The first and second floors follow a shared footprint. Each offers two generously sized double bedrooms to the left as you enter their landings, and a bathroom ahead, both with shower, bathtub and WC. The first floor's bedrooms are particularly noteworthy, as they are divided with an original set of large, double arched doors. Whilst the two bedrooms at the front of the house face west and feature two sash windows a piece, the rear bedrooms face east and feature one central sash window each. All benefit from feature fire surrounds.
Flexible Floors
Gordon House's third - and top - floor has two double bedrooms. They are accessed from the sky-lit hallway and follow the pitch of the building's gull-wing roof, which would have been originally constructed with ship's beams sourced from nearby Chatham Dockyard. The larger of the two bedrooms takes the whole width of the house's front, west-facing side and draws back to create an L-shape, with two entrance doors. As such, it could be easily divided into two, if desired. A bathroom with shower, separate WC and a small kitchen make this floor self-contained, and ideal for guests. The sea and the horizon line can be seen from here too, just beyond the charming menagerie of Margate's rooftops.
At the opposite end of the house, the lower ground floor brings the current owner's creative and community spirits together. Sharing the same footprint as the ground floor, it is divided into one triangle-shaped room - currently being used as an artist studio - and a large, well-realised gallery space. The latter makes use of one of Gordon's House's two lower-ground-level entrances, affording the public direct access to the gallery from the street, making it an ideal events or work space. There is also a WC on this floor, and a large storage room.
In and Out
Secondary access to the garden is available from the gallery via French doors, which open out onto a gravelled lower terrace. The upper half of the garden is ascended to by steps, and home to a border of brick-made raised beds, a corner shed and a lockable gate that leads out to the public alleyway that flanks Gordon's Houses northern edge. Mature planting climbs the garden's perimeter, which provides a sheltered pocket of green that traps the sun.
As Gordon House is Grade II listed, the windows have been fitted with secondary glazing. The home's history also affords it access to four subterranean spaces - three to the front that stretch under the road (two of which provide ample dry storage) and one in the garden that holds plenty of potential as an additional storage space or darkroom. The current owners overhauled the home's internal gas and electricity supply networks approximately six years ago, modernising them completely.
Location
Gordon House's location puts you right in the centre of Margate, mere moments from the charming old town, with its independent restaurants, cafes, galleries and shops, and a short walk to the area's sandy beaches and the Turner Contemporary art gallery. The Carl Freedman Gallery is closer still, whilst The Centre Margate and the High Street are just a minute's walk away.
Margate recently received confirmation of £22 million funding as part of the Government’s Town Deal programme, so the area is on course for continued renovation across its creative, heritage and wellbeing sectors. With the fund, historic buildings such as the Winter Gardens and Dreamland Cinema, are set to be refurbished, whilst better connections throughout the town will be implemented, making walking and cycling routes more attractive. Facilities and access to the coastline will also be improved, including that of Walpole Bay tidal pool - a favourite spot amongst locals.
Margate train station is a 13-minute walk away, just the other side of Margate Main Sands. London can be reached directly in 1 hour and 24 minutes by rail. The nearby coastal towns of Broadstairs and Ramsgate are easily reached by car, bus or train, whilst slightly further afield are the charming seaside draws of Whitstable, Deal and Sandwich.
-
Lease Lengthn/a
-
Service Chargen/a
-
EPCtbc
Floorplan
-
Area (Approx)
4903 sq ft
455.5 sq m

Map
Gordon House’s location puts you right in the centre of Margate, mere moments from the charming old town, with its independent restaurants, cafes, galleries and shops, and a short walk to the area’s sandy beaches and the Turner Contemporary art gallery.







































































