I
N
Information
Full Details
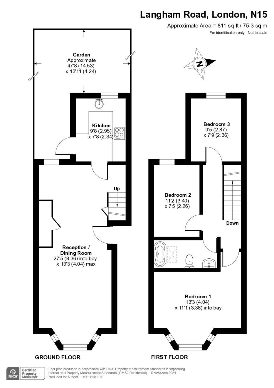
This mid-terrace Victorian house on a quiet, tree-lined street moments from Turnpike Lane station has undergone a considered refurbishment to offer free-flowing living spaces, a lush, mature garden and three well-configured bedrooms. Inside, modern joinery and materials work with original Victorian floorboards and proportions to form characterful, well-appointed spaces.
A Victorian tiled hallway shared with the neighbouring home leads you through to a front door that opens onto a bright and airy double living space. The front room is decorated with soft uplighting, restored pine timber flooring and a wonderful south-facing bay window which welcomes plenty of natural light throughout the ground floor.
The entire dining area has been redesigned with custom-made, full-height birch plywood storage, which extends into feature bench seating, where the dining table is positioned under a trio of lights. Soft push, handleless units keep the design in line with the clean, modern finish experienced throughout. There is well-placed shelving, under-stair and bench storage, views into the garden via a picture window and a continuation of the pine flooring from the living room.
The U-shaped kitchen has been designed with functionality and practicality in mind. Contrasting high and low-level units blend perfectly with a Colonial White granite countertop and splashback, while the sink’s window offers calming views over a rear garden filled with mature planting.
Upstairs there are three double bedrooms. The principle bedroom is found at the front, with a large south-facing bay window. Both other bedrooms offer views over the rear of the house and garden, making them well-suited for a home office or study.
The bathroom is finished in microcement and features a terrazzo splashback and tiles, matt black bathroom fittings, a rain shower, a freestanding bath and built-in recess shelving. Most striking is the large skylight above the shower & its beams of natural light.
The rear garden is a secluded oasis with mature shrubs and trees, creating privacy from the neighbouring houses. The slabbed patio tiles keep the garden low maintenance and perfect for entertaining.
-
Lease LengthNone
-
Service ChargeNone
-
EPCD View
Floorplan
-
Area (Approx)
Approximate Area = 811 sq ft / 75.3 sq m

Map
Langham Road, N15, offers a blend of contemporary living in a vibrant North London neighbourhood. This sought-after street features an eclectic mix of stylish period homes and sleek modern properties, creating a unique and dynamic community. The tree-lined road provides a serene backdrop, perfect for both families and professionals seeking a peaceful yet connected lifestyle.
Residents enjoy exceptional transport links, with Turnpike Lane Underground Station just a short stroll away, offering direct access to the Piccadilly Line. Multiple bus routes further enhance connectivity into Central London.
Local favourites Yard Sale Pizza & Perkyn’s coffee shop are ~10minutes walk away at the end of street, right beside the large green spaces of Downhills park and Lordship Recreation Ground. The property is also situated a short distance from Green Lanes and the busy heart of Harringay, with cult bakery The Dusty Knuckle, local delis, and many excellent Turkish restaurants.
Langham Road and surrounding streets are part of Bruce Grove West Green Low Traffic Neighbourhood.














































