I
N
Information
Full Details
Set within a tall, imposing Victorian terrace, this curated split-level apartment has recently been transformed to offer a playful mix of warm period charm and modern, sustainable practicality.
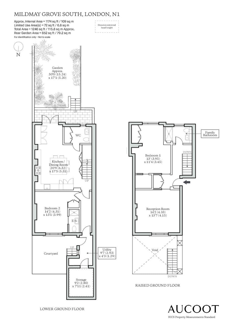
Greeted by an entrance hall with convenient storage, you are led into a front-facing living space, thoughtfully designed to celebrate the home’s heritage, while carefully selected design elements contemporise the room. A large double-glazed sash window with original shutters allows the morning light to softly illuminate the soft tonal palette used during the refurbishment, while a marble-surround fireplace and ornate ceiling rose serve as reminders of the Victorian era.
On this floor, at the rear of the house, the principal bedroom boasts far-reaching views over the garden and beyond, framed by a triple-glazed picture window. Bespoke cabinetry and an integrated study area make this a serene retreat and a perfect vantage point to enjoy the south-facing vista. Completing the floor is a a spacious shower suite, fitted with marble tiles and brushed brass Crosswater sanitaryware
The lower level has been entirely reimagined, with the heart of the home now centred around a welcoming kitchen, handcrafted by Funktional. The kitchen features an integrated Siemens double fridge and a Bertazzoni Pro Series range oven, blending style and functionality.
This floor also accommodates a convenient guest cloakroom with storage and to the front, there is a second double bedroom, which serves a dual purpose for the current owners as a passive income source through Airbnb. With a separate entrance and en-suite shower-room, the room provides the ideal setting for those wishing to use the two levels independently.
Sustainability has been a major consideration throughout this back-to-brick renovation. A Passivhaus-spec MVHR system has been introduced to improve air quality and enhance airflow throughout the home. In addition to the triple glazing in the principal bedroom, double glazing has been installed throughout to further improve energy efficiency. Thoughtful features include a Comelit video entry system, herringbone hardwood flooring, underfloor heating on both floors, and bespoke joinery by Hill Hurl.
The garden is accessed via French doors in the kitchen. Following partial excavation during the refurbishment, the space is gently welcomed via a patio that leads up to a lawned area. Here, a mix of mature shrubs and flowers is complemented by a mini allotment that allows the home to produce its own produce.
-
Lease LengthShare of Freehold
-
Service ChargeNone
-
EPCB View
Floorplan
-
Area (Approx)
Approx. Internal Area = 1133 sq ft / 105.2 sq m
Approx. rear garden area = 1190 sq ft / 110.6 sq m

Map
Tucked between the quaint, village-like enclaves of Newington Green and De Beauvoir Town, this vibrant area is home to an eclectic mix of independent shops, cafes, and restaurants. Begin your day by picking up fresh produce from Newington Green Fruit and Veg, then enjoy a coffee and pastries at the ever-popular Jolene. As the day unfolds, indulge in a signature cake from Belle Epoque, or relax in the sun at one of the many outdoor spots overlooking the Green. For a refreshing drink, stop by the Alma before heading to dinner at Cadet, Perilla, or Oi Vita Pizzeria.
For a break from the urban bustle, Highbury Fields and Clissold Park are both nearby, offering a peaceful retreat with plenty of greenery.
Transport is incredibly convenient: Canonbury Overground provides direct links to the City and East London, while Highbury & Islington station (Victoria Line) ensures quick access across the capital. With a network of well-connected bus routes, plus proximity to St Pancras International and easy links to Stansted Airport, travel couldn’t be easier.








































































