I
N
Information
Full Details
Perfectly positioned in Walthamstow Village, this four-bedroom home has been comprehensively reimagined by Shacklewell Architects with interior design by Camilla Fernandez into a considered, harmonious space. The new layout took into consideration how to keep the living areas calm and clutter free and created solutions that were both visually refined as well as highly functional.
The London stock brick façade has been carefully repointed, with restored sash windows, Victorian tiling and a rich burgundy front door offering an elegant prelude to the high level of finish within. Inside, duck-egg blue panelling lines the walls, while tumbled, chequered Rosso and Calacatta marble tiles run underfoot, drawing the eye towards the rear extension. To the right, a thoughtful reinterpretation of the traditional double reception has created a generous living room, where bespoke joinery wraps the walls to evoke a library-like atmosphere. Ornate cornicing traces the ceiling, and a working log burner with a marble surround by Chesney provides a refined focal point.
The reconfigured ground floor has been designed to accommodate the rhythms of daily life with ease, incorporating a dedicated cloakroom, buggy store and pantry, each carefully conceived to keep clutter at bay. As a result, the rear kitchen and dining extension is able to take centre stage as a light-filled space.
Light pink Shaker-style kitchen cabinets are topped with quartz countertops, with a double butler sink and British-made Perrin & Rowe unlacquered brass sink tap. The induction hob has an integrated extractor fan housed in the kitchen island which has plenty of space for bar seating. There is a cleverly disguised pantry tucked away with room for appliances and provisions.
Above, pitched skylights draw in southerly light across the day, while sliding glazed doors establish a seamless connection with the well-tended garden beyond. A dedicated dining area and additional seating complete the room, shaping it into a relaxed and sociable family space.
Ascending to the first floor, the two front bedrooms have been combined to form a generous principal suite. Finished in a soft blue palette, the bedroom features a wall of built-in wardrobes, while a spacious bathroom is accessed both from the landing and directly from the bedroom. Marble tiling extends across the floors and walls, complementing a roll-top bath and separate walk-in shower to create a luxurious, well-proportioned space.
A dedicated utility room has also been introduced on this level, thoughtfully designed to keep the practicalities of daily life neatly tucked away from the main living areas. There is also a bedroom on this floor overlooking the garden.
The 2023 renovation saw the addition of a generous loft extension, creating two further bedrooms alongside a beautifully appointed shower room that serves both. Light streams through the new floors from the large-scale skylight. As part of the wider refurbishment, the home’s wiring, insulation, roof and plumbing were upgraded, and the rear windows were replaced, ensuring the house functions as seamlessly as it looks.
To the rear, the garden has been thoughtfully maintained, featuring a paved terrace for outdoor dining alongside a lawn bordered by planters filled with evergreens and mature trees. A further paved area has been designated for a barbecue, creating a well-balanced and versatile outdoor space.
-
EPCC View
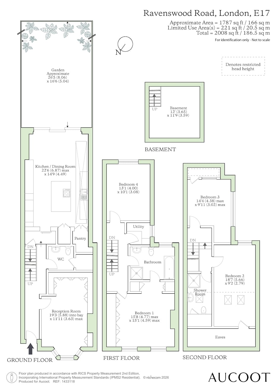
Floorplan
-
Area (Approx)
Approx Internal Area 2008 sq ft / 186.5 sq m

Map
Ravenswood Road sits at the heart of Walthamstow Village, moments away is Orford Road, long credited with helping to revive Walthamstow as a destination, which offers a host of places to eat, drink and shop. Eat17 is one of several well-loved local delis, doubling as a relaxed brunch spot and hosting a fresh fishmonger stall each Friday. A steady stream of new openings continues to add to the area’s appeal, including Gail’s Bakery and Ruff’s Bistro, while longstanding favourite The W Store is ideal for homeware and gifts. For pub lovers, The Queen’s Arms and The Castle are both excellent and firmly cherished by locals. Cultural hotspots in the area include the Soho Theatre which has opened a Walthamstow outpost, bringing a lively programme of theatre, comedy and cabaret, as well as the Forest Cinema which champions independent film.
Schooling options are excellent and include the Walthamstow Village Montessori School and St Mary’s Primary School, which are both under a 10-minute walk, and the highly celebrated Walthamstow School for Girls.
There is an excellent range of transport links; Walthamstow Central, served by the Victoria line, while Walthamstow Bus Station offers numerous routes connecting to Hackney, Islington and the City. Wood Street Station is also just over a 10-minute walk and has direct services to Liverpool Street.







































































