I
N
Information
Full Details
Thoughtful additions by the current owners have transformed this bright semi-detached home into a refined, contemporary space. Set on a quiet residential street in a sought-after pocket of north London, the façade features distinctive grey-toned windows, offset by red brick and side access via a tall wooden gate. A practical storm porch opens into a wide hallway, where a striking plywood staircase incorporates clever built-in storage for coats and bags.
Off the hallway, a spacious living room is defined by soft white walls and a low-profile plywood storage unit. The home’s restrained, minimalist aesthetic carries through the reconfigured layout, guiding the space naturally towards the rear extension. Here, the plan has been intelligently adapted to incorporate a shower and WC, along with a generous larder providing extensive storage.
The kitchen has bright white cupboards with integrated appliances, which complement the plywood used throughout and the arched terracotta zellige tiles from Otto. The intuitive layout includes a generous island which allows for additional seating and is ideal for busy family life and entertaining. A skylight and large glazed windows provide plenty of natural south-facing light, alongside the door leading to the garden.
Upstairs, the material palette continues, with plywood wrapping around the landing and white-stained floorboards running underfoot. Two generously proportioned bedrooms sit at either end of the floor. The front-facing bedroom features built-in wardrobes with seamless closures, creating a clean, streamlined finish. To the rear, a large bedroom is currently arranged as a dual study, complete with bespoke desks and shelving. A further bedroom and a family bathroom with Lusso Stone fittings and integrated storage complete the floor.
The well-kept garden combines wooden decking with hexagonal terracotta tiles, offering an inviting setting for outdoor dining. Two dedicated planters accommodate fresh vegetables, which are complemented by a mature pear tree and lawn.
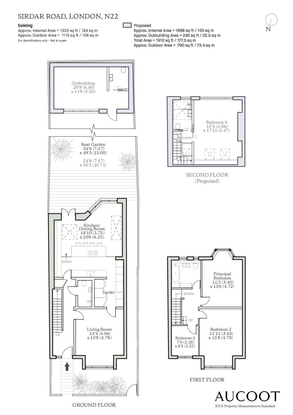
The homeowners also have drawings and planning permission for a loft conversion and a single-story studio / outbuilding, seen on the floorplan.
-
Lease LengthFreehold
-
EPCD View
Floorplan
-
Area (Approx)
Approx Internal 1325 sq ft / 125 sq m
Approx Internal Proposal 1658 sq ft / 154 sq m
Approx Outbuilding Proposal 242 sq ft / 22.5 sq m
Approx Proposal with Outbuilding 1900 sq ft / 175.5 sq m

Map
Sirdar Road is surrounded by a vibrant community with plenty of independent shops and wonderful restaurants nearby. Green Lanes is a short walk away, which is renowned for its fantastic Turkish spots including Gökyüzü, Tandir and Hala. For coffee, Dusty Knuckle has a nearby outpost serving its much-loved sourdough and pizza, while cult favourite Bolland & Crust is just moments away, known for its Friday BBQs and cocktails. Crouch End is a short drive away and has a Picturehouse Cinema, leisure centre and lido as well as a handy Waitrose outpost.
The home is nestled between Lordship Recreation Ground, Downhills and Russell Park offering plenty of opportunities for exploring the green space. There are also a host of top rated schooling options close by including Belmont Junior School, Noel Park Primary School and Hornsey School for Girls, which are both under a 10 minutes walk. There’s plenty of transport links including Turnpike Lane which is serviced by the Piccadilly line as well as a number of bus routes into the city.




































































