I
N
Information
Full Details
A rare opportunity to acquire a mid-century former park-keeper’s house, discreetly positioned within the original grounds of Haggerston Park in Hackney. Hidden behind the park’s high perimeter wall and accessed through three-metre-high gates, this detached home offers a unique chance to own a property that not only occupies a prime position but also holds exceptional potential, whether through extension or complete reimagining.
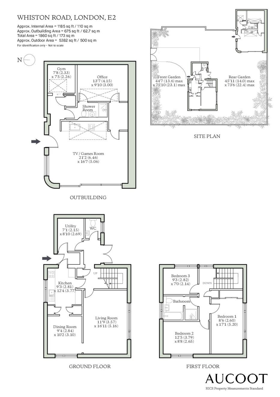
The current house spans approximately 1,300 sq. ft across two storeys and is arranged as a three-bedroom residence. While modest in scale, its mid-century design carries a quiet integrity, offering a lateral layout rarely found in the area. Its location is genuinely special: a wrap-around country-like garden evokes a sense of seclusion and calm, yet uninterrupted, south-facing views across the park to the London skyline serve as a constant reminder of its urban setting.
In addition to the main house, a separate, design-led annex of 800 sq. ft is already in situ. Built by the highly regarded AF Build, this self-contained space offers flexibility - ideal for guests, extended family, or as a peaceful retreat during any future works.
The home now invites an exciting opportunity for transformation, either by way of a sensitive extension under permitted development, or a full architectural redesign.
Approved permitted development rights to extend the current footprint are already in place, including a double-storey extension and a separate, detached garage. If realised, this option would extend the floorspace to approximately 1,800 sq ft.
Given the breadth of the plot, we believe there also exists a compelling opportunity to create something truly personal and architecturally ambitious through a re-build. To explore the potential, we invited acclaimed London-based Scenario Architecture to develop a conceptual response. While not submitted for planning, their vision proposes a 5,000 sq. ft + home defined by generous proportions, refined detailing, and a strong commitment to sustainability.
-
EPCE
Floorplan
-
Area (Approx)
Site is approx. 7,200 sq. ft

Map
Whiston Road runs parallel to the southern edge of Haggerston Park, placing it at the heart of one of East London’s most characterful and creative neighbourhoods. Just moments from the lively bustle of Broadway Market and the flower-filled charm of Columbia Road, the area is home to a thriving mix of independent boutiques, cafes, galleries and restaurants, all within easy walking distance.
The nearby stretch of Regent’s Canal offers a scenic route by foot or cycle, connecting Haggerston to Victoria Park, London Fields and further west towards Angel. Along the towpath, moored narrowboats double as bookshops, coffee stops, and seasonal kitchens, lending the area its distinctive energy and bohemian character.
The Lodge backs directly onto the greenery of Haggerston Park, a rare and tranquil setting in inner London. London Fields and Victoria Park, both just a short walk away, provide further open space, with weekend markets, lido swimming, and a calendar of cultural events throughout the year.
Well connected yet quietly positioned, Whiston Road is served by excellent public transport links. Haggerston Overground Station is just 0.6 miles away, offering access to Shoreditch, Dalston and Highbury & Islington. Several key bus routes operate nearby, ensuring easy travel across the city.


























