I
N
Information
Full Details
Dating back to the early 19th century, this handsome townhouse is a considered demonstration of how old and new can exist in harmony. A back-to-brick renovation was undertaken by the current owners, who enlisted architect William Guthrie to enhance the functionality of the internal footprint while bringing light and cohesion to the space. The result is a highly practical layout, complemented by a calming palette using paint from Edward Bulmer and an elegant garden-room extension.
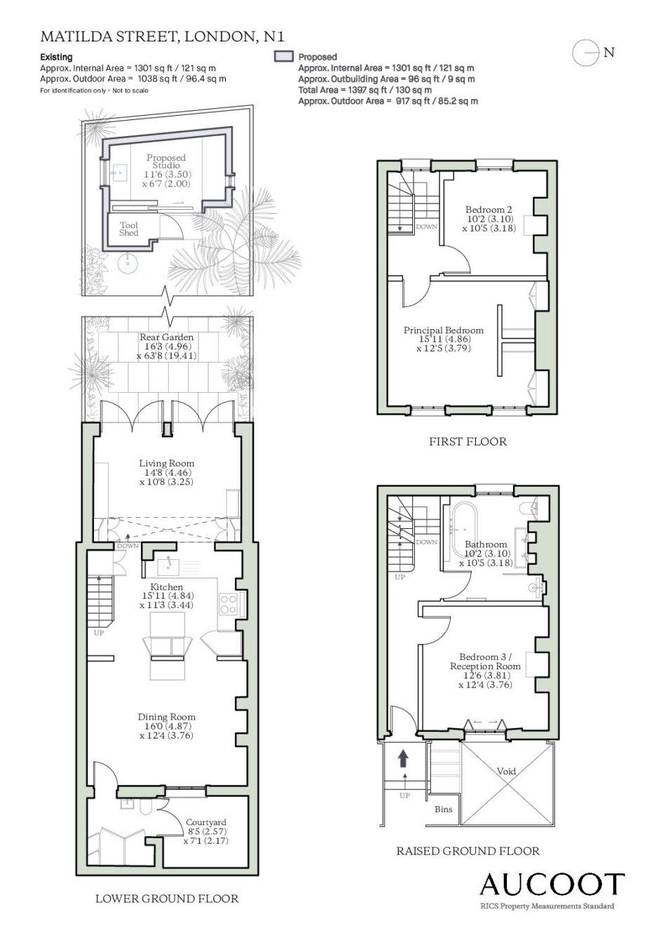
Entry is via deep steps leading to the front door, topped with a decorative arched fanlight. On the raised ground floor, the layout has been cleverly designed to invert the living spaces. To the right, a reception room, which could be used as a further bedroom, features original shutters framing the eight-over-eight sash windows, a hallmark of the Georgian era. At the rear of the house, the generous family bathroom boasts fittings by Lusso Stone, including a free-standing bath and walk-in shower, complemented by soft tiling from Ce.Si. Ceramica.
The lower ground floor is dedicated to the living and dining areas. Honed limestone tiles run seamlessly underfoot throughout the space. At the front of the home, a new utility area has been created beneath the stairs, finished in soft terracotta hued tongue-and-groove panelling.
The dining room and kitchen occupy the main body of the space, flooded with light from the skylight added as part of the extension. Attention to detail is evident throughout, from the bespoke Cab joinery in the kitchen to the Verde Ardesia limestone worktop, craned in to minimise visible joins. The result is a harmonious expression of the house: refined and contemporary, yet fully sympathetic to its historic character. The newly created garden-room extension features timber beams overhead and bespoke cabinetry bookending the space.
Ascending to the first floor, there is the principal bedroom which has been configured to provide ample wardrobe space and a further bedroom overlooking the garden.
Double French doors open onto a garden designed by celebrated landscape designers Tomalik & Gunia. The outdoor terrace is framed by herbaceous shrubs, with dark grey quarry tiles providing a striking contrast to the winding gravel path that draws the eye through the space. The garden features a mature cherry tree alongside a rich variety of evergreens, plants, and flowers. At the far end, a children’s play area offers a den-like retreat and could also accommodate a proposed studio, as indicated on the floorplan.
The renovation included an extensive program of works, encompassing rewiring, replumbing, repointing, restoration of all timber sash windows, installation of a new lead roof in utility room, and comprehensive damp proofing throughout.
-
EPCGrade II Listed
Floorplan
-
Area (Approx)
Approx Internal Area 1301 sq ft / 121 sq m
Approx External Area 1038 sq ft / 96.4 sq m

Map
Part of the Barnsbury Conservation Area in Islington, Matilda Street is lined with handsome Georgian façades and is just moments from popular local pubs, including The Albion and The Draper’s Arms. Opposite St Andrew’s CofE Primary School, residents benefit from an exemption from traffic restrictions, allowing them to drive and park freely. The house also faces Barnard Park, recently relandscaped, and is close to a variety of eateries, from Sunday café and restaurant for brunch to The Tamil Prince and the beloved local Italian, La Taberna.
A 10-minute stroll brings you to the vibrant buzz of Upper Street, home to independent shops, restaurants, and cultural venues including the Almeida Theatre and Screen on the Green. Transport links are excellent, with Canonbury and Barnsbury stations on the Overground, Highbury & Islington and Caledonian Road stations serving the Victoria and Piccadilly lines, plus connections to national rail and a range of local buses.
A short walk west brings you to the waterside calm of Granary Square, where wide stone steps cascade down to the Regent’s Canal and cafés spill out around one of London’s largest public squares. Just beyond, Coal Drops Yard hums with energy, its beautifully reworked Victorian railway arches now home to a curated mix of independent boutiques, design-led brands and destination restaurants, from relaxed wine bars to late-night favourites. It’s a place that feels both urban and considered – social without ever being overwhelming.
Transport connections are equally compelling. King’s Cross Station and St Pancras International are close at hand, offering access to six Underground lines, national rail services and Eurostar connections to Paris, Brussels and beyond. Whether commuting across the city or heading further afield, the area is exceptionally well connected, making this a location that balances neighbourhood living with truly global reach.




























































