




































































I
N
Film
Information
Full Details
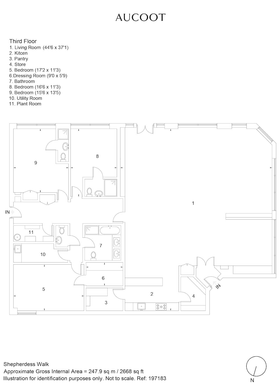
A recently refurbished warehouse conversion with a huge emphasis on living space and natural light. One of the largest apartments located in the highly sought-after Shepherdess Walk Buildings, this impressive three double bedroom loft measures nearly 2700 square feet and has architect designed interiors, two separate entrances and in addition to everything else, still has space for relaxing in a hammock.
The real draw of this third-floor apartment is its vast 44 x 37 foot living space – photographs really can’t do this space justice. Big enough to accommodate two separate dining areas and two separate living areas and still retain the open-plan feel that you would expect from a former industrial building. Large sash windows along two sides of the room and double factory doors (with Juliet balcony) make sure there’s lots of light, even on an overcast day. Modern oak strip parquet flooring runs throughout and is used to clad some of the walls. Original features include, exposed brick work, large metal doors, pillars and exposed beams. The kitchen has contemporary grey units and worktops, quality appliances and also benefits from two separate walk-in pantries. Located off a wide hallway is the master bedroom with dressing room, as well as a family bathroom, WC, utility room, two ensuite bedrooms and additional storage. Another entrance is located at the far end of this hallway which leads to a separate entrance to the building located on Underwood Row. Additional features include, underfloor heating, air ventilation system, lots of storage throughout and solid oak doors.
Shepherdess Walk is close to Old Street, Shoreditch, Barbican and the City. There are numerous internationally acclaimed galleries, restaurants and bars to choose from – the Victoria Miro Gallery and Jamie Oliver’s Fifteen being two of the closest, not to forget recent newcomer, Sardine. The Regent’s canal is a short walk in the opposite direction and Angel is a little further, either along the canal or via City Road. There are good transport links with buses running in to the City and the West End, and the distance to Old Street station is 0.5 miles.
-
Lease Length104 years (125 years from 1996)
-
Service ChargeApprox £2,323 per annum
-
EPCB View
Floorplan
-
Area (Approx)
2668 sq ft
247.9 sq m

Map
Shepherdess Walk is close to Old Street, Shoreditch, Barbican and the City. There are numerous internationally acclaimed galleries, restaurants and bars to choose from – the Victoria Miro Gallery and Jamie Oliver’s Fifteen being two of the closest, not to forget recent newcomer, Sardine.
Brochure.
Download Property PDF
(0.00 )
Viewings By Appointment.
T. 020 7112 4907
[email protected]
-
Television Centre, London W12
Television Centre, London W12sold -
The Makers House, Victoria Park, London E9
The Makers House, Victoria Park, London E9sold

