I
N
Film
Information
Full Details
This is an incredibly rare, three-bedroom Georgian townhouse, painstakingly and thoughtfully renovated by historical paint expert, Pedro da Costa Felgueiras of Lacquer Studios. Were it not for the modern concessions, like underfloor heating, it would seem as if the house had been plucked directly from the early 19th century. The award-winning home, with its beautiful walled garden, is perfect for those wanting a peaceful refuge close to the City.
During the vast renovation of this once dilapidated house, da Costa Felgueiras has employed traditional materials and methods throughout, staying as true as possible to the history of the building. He hand-mixed all the paints himself using mostly linseed oil and antique powder pigments to ensure historically accurate colours. Original fittings such as panelling and staircases were repaired, and the rear gardens reinstated on what had become a car park. His meticulous restoration has included traditional details throughout the house that were typical of Whitechapel homes from this era. The mansard roof extension has been covered in handmade plain and pan-tiles and a rear wing clad in weatherboarding. Cement was only used where it was essential, such as in the underpinning or any new foundations.
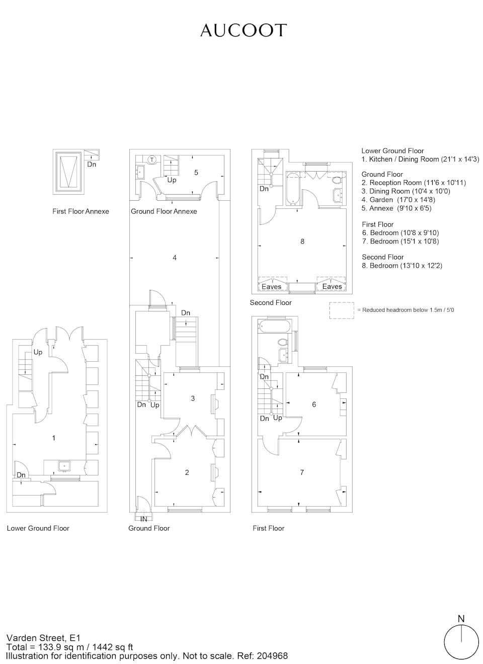
The lower ground floor of the house is an open-plan kitchen/diner with underfloor heating beneath a reclaimed flagstone floor and double doors opening out to the garden. This level has been excavated to allow for more headroom than originally intended making it a more useable and enjoyable space to be in. The woodwork is painted in traditional yellow ocre and the walls are covered with white limewash which allows the house to breathe. The working fireplace and large cooker ensure this room feels like the heart of the home. At the front of the house is a fully tanked coal bunker that is now used as a utility room and wood store. Down the hallway there is further access at the rear of the house to the garden with its beautiful espalier apple and pear trees flanking both sides. A brick-built workshop lives at the end of the garden, with mezzanine storage and a separate WC.
The ground floor is home to a more formal double reception room, with wood panelling and further fire places with stone surrounds. Up to the first floor and you’ll find a family bathroom with generously high ceilings and two double bedrooms. On the second floor, the wood-panelled master bedroom and en suite bathroom are bathed in light which enters from windows at either side and passes through internal glazing dividing the two rooms.
Pedro da Costa Felgueiras set up Lacquer Studios in 1995 and specialises in Oriental and European laquer, as well as historic paint techniques. Well known in the trade for his attention to detail and ethos, he is seen by many as a custodian of traditional methods. His reputation has earnt him commissions that include re-painting the 18th Century home of Gilbert and George, overseeing the re-painting of Strawberry Hill House in Twickenham and working on the Great Pagoda at Kew Gardens. Although most of his time is spent restoring old buildings, he is also known for his work on smaller scales for clients such as Burberry and the late Isabella Blow, collaborations with other craftspeople such as artist Marianna Kennedy, and his own furniture produced for The New Craftsmen.
The houses in this development area were originally built between 1810 and 1815 by the Royal London Hospital’s charitable foundation as a way of supporting the hospital before the NHS was established. The dwellings counted a surgeon, sea captain, plumber and shopkeeper among their first residents. The properties on Varden Street and Turner Street later fell into complete disrepair and were abandoned for 20 years, eventually being de-listed and threatened with demolition in 2005. In 2007 The Spitalfields Trust stepped in and were tasked with finding suitably skilled owners for the houses who would be responsible for the restoration of the buildings for 21st century use. Working with a number of the new owners, da Costa Felgueiras came in as the historic paint specialist and aesthete.
The house is in the Myrdle Street conservation area close to the Royal London Hospital. There are lots of pubs, bars and restaurants within easy reach and the world renowned Whitechapel Art Gallery is a short walk away. Whitechapel station is under half a mile away, with services on the District, Hammersmith & City and Overground lines. It will also be part of the Elizabeth line (Crossrail) when this opens in late 2018, enabling you to be in Bond Street in ten minutes, Canary Wharf in three minutes and Heathrow in 38 minutes. A similar distance in the opposite direction is Shadwell DLR and Overground station. Regular buses run to and from the City and you can also walk there in 20 minutes. Liverpool Street, Fenchurch Street and Shoreditch are all roughly one mile away.
-
Lease Lengthn/a
-
Service Chargen/a
-
EPCE View
Floorplan
-
Area (Approx)
133.9 sq m
1442 sq ft

Map
The house is in the Myrtle Street conservation area close to the Royal London Hospital. Whitechapel station is under half a mile away, with services on the District, Hammersmith & City and Overground lines. It will also be part of the Elizabeth line (Crossrail) when this opens in late 2018, enabling you to be in Bond Street in ten minutes, Canary Wharf in three minutes and Heathrow in 38 minutes. A similar distance in the opposite direction is Shadwell DLR and Overground station. Regular buses run to and from the City and you can also walk there in 20 minutes. Liverpool Street, Fenchurch Street and Shoreditch are all roughly one mile away.









































































