I
N
Information
Full Details
This striking one-bedroom apartment is part of an RIBA award winning warehouse conversion by vPPR architects. Completed in 2016, the building has an enviable location on Redchurch Street, in the heart of fashionable east London.
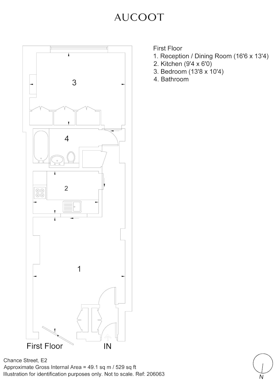
Designed to a very high standard, the apartment consists of an open plan living and dining area, a kitchen, and a tiled bathroom with full bath and double bedroom. There are high ceilings, lighting by Zumtobel and underfloor heating throughout. The living space looks out onto a shared terrace through large, full-height glazing which pivots open, blurring the line between inside and outside spaces, while bringing in lots of natural light and air. A freestanding kitchen and bathroom enclosure, clad with stained birch ply, means there is very little wasted space and the transition from the living space to the bedroom is seamless. The kitchen, which includes a serving hatch, is made up of white units with stainless steel work tops and built-in Siemens, Neff and Bosch appliances. The bedroom retains the original critall windows with added secondary glazing, illustrating the building’s industrial heritage, and has plenty of light and built-in storage.
The residential part of the building is accessed through a discrete and secure entrance on Chance Street that opens into an elongated courtyard, planted with mature silver birch that forms an internal ‘street’. One of eight homes in the building, the apartment is on the first floor which is reached via stairs or a lift.
vPPR Architects was set up in 2009 by Tatiana von Preussen, Catherine Pease and Jessica Reynolds, and is an award-winning practice known for their bold designs. “Inspired by design from both the UK and the US, we believe that architecture can and should be brave through simple, honest clarity, while still responding to local history and context.”
Originally made popular by the Young British Artists, this immediate area of the city is now home to high-end retailers and some of the best restaurants, bars and hotels in London, including Terrance Conran’s The Boundry, Shoreditch House and the Ace Hotel. A short walk to the City and with great transport, it still attracts some of the brightest creative minds in the country. Venture a little further and discover Brick Lane, Arnold Circus, Columbia Road Flower Market, Spitalfields and the rest that Shoreditch and Old Street has to offer. Nearby Shoreditch High Street station makes up part of the Overground train line and a little further, Liverpool Street station has overground as well as underground trains and is one of the stations on the new Crossrail line. Numerous buses are available also from Shoreditch High Street and Bethnal Green Road.
Tenure: Leasehold
Lease: Appox 115 years
Service charge: Approx £3000pa (includes heating and hotwater)
-
Lease LengthApprox 115 years
-
Service ChargeApprox £3000pa (including heating and hot water)
-
EPCC View
Floorplan
-
Area (Approx)
49.1 sq m
529 sq ft

Map
A short walk to the City and with great transport, this area attracts some of the brightest creative minds in the country. Venture a little further and discover Brick Lane, Arnold Circus, Columbia Road Flower Market, Spitalfields and the rest that Shoreditch and Old Street has to offer.















































