I
N
Information
Full Details
Tucked behind the historic façade of a 1920’s keeper’s cottage, this architecturally reimagined three-bedroom home strikes a compelling balance between heritage and contemporary craft. Subject to a meticulous back-to-brick renovation, the house now extends across three thoughtfully configured storeys and comes with the benefit of a 10-year new-build guarantee from when the house was built.
Behind the Dutch-gabled frontage, the interior unfolds as a sequence of generous, light-filled living spaces, each defined by a quiet material palette, intelligent spatial flow, and a considered connection to the outdoors.
The original brick façade – composed of yellow and red London stock – belies the transformation that lies beyond. Accessed via a discreet gated driveway, the entrance opens to a warm and practical hallway, where underfloor heating runs beneath Mandarin Stone tiles and a wood-burning stove anchors the space. A guest WC and ample built-in storage are tucked cleverly to one side.
The ground floor is given entirely to living, dining and cooking. At the rear, a custom Schmidt kitchen is framed by Corten-effect cabinetry and a quartz-topped island, with appliances by AEG and a Quooker tap adding to the ease of everyday use. The adjoining living area is serene and social in equal measure – bathed in light from a run of Crittall-style glazing that opens onto the rear patio. Engineered oak parquet adds warmth underfoot, while triple glazing and air conditioning ensure comfort in every season.
Upstairs, the principal bedroom is softly textured with built-in wardrobes and opens onto a curved private terrace. Its en suite bathroom is fitted with a walk-in shower and refined finishes. A second bedroom and family bathroom with a deep porcelain bath complete this floor. Ascend again to find a voluminous third bedroom or work space, crowned by an exposed pitched roofline with skylights overhead. A second balcony on this level offers a quiet outlook and space for planting or morning coffee.
Environmentally conscious upgrades – including an air-source heat pump and discrete solar panels – were seamlessly integrated during the renovation, enhancing energy efficiency without compromise to design.
Externally, the home benefits from three distinct outdoor areas: a gated driveway with off-street parking for two cars and an EV charging point; a private patio extending from the living space; and two upper-level terraces, each with its own character and orientation – ideal for dining, growing, or simply retreating into the rhythm of the day.
-
EPCC View
Floorplan
-
Area (Approx)
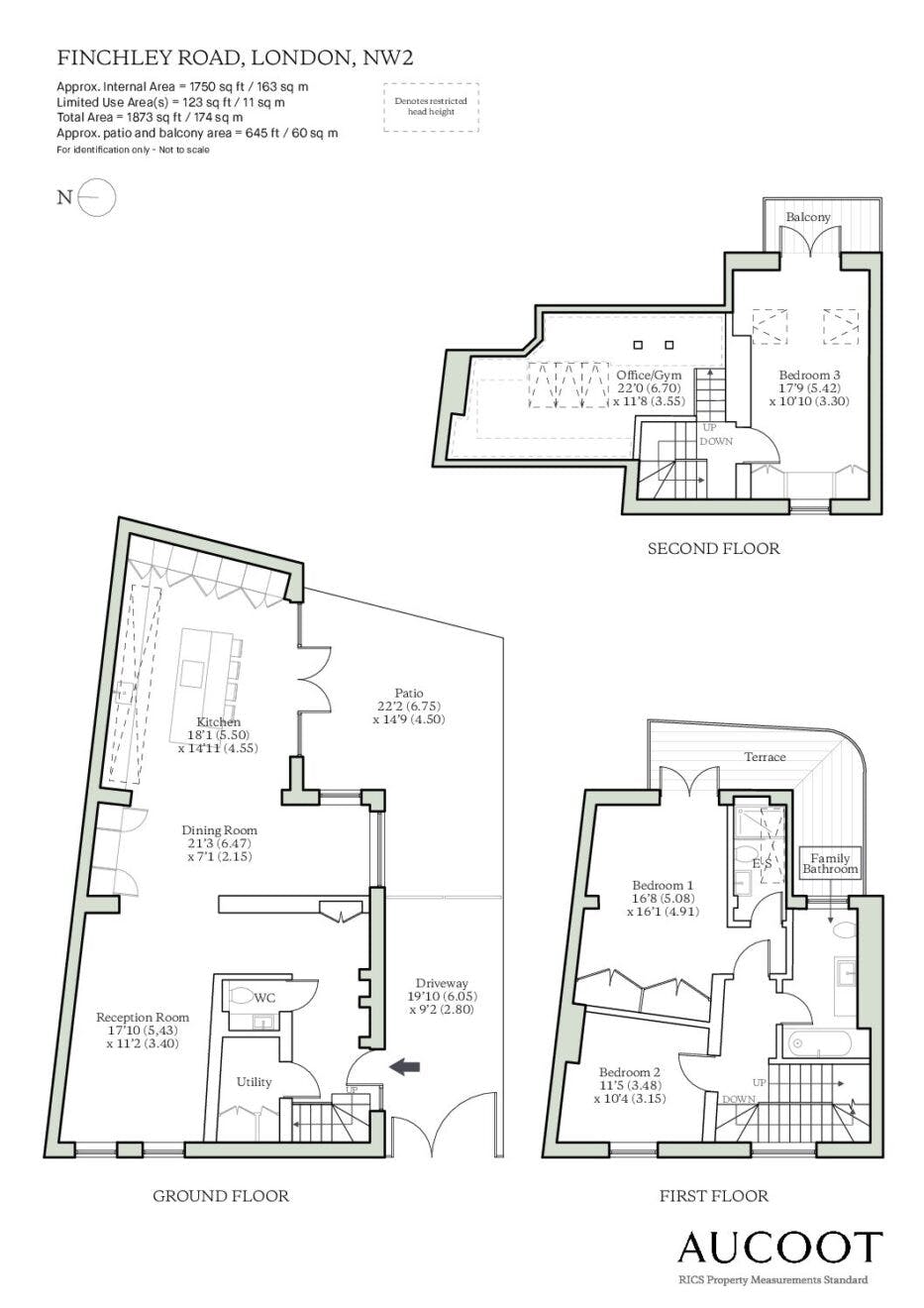
Approx. Internal Area = 1750 sq ft / 163 sq m
Limited Use Area(s) = 123 sq ft / 11 sq m
Total Area = 1873 sq ft / 174 sq m
Approx. patio and balcony area = 645 ft / 60 sq m

Map
The house is a short walk from Hampstead Heath and only 1.3 miles to the centre of the village itself. Hampstead, a quaint village in the city — steeped in culture, rich in history, and alive with creative energy. There are few places in London that balance proximity to the centre with a true sense of escape — yet Hampstead does so effortlessly. Defined by its cobbled lanes, Georgian facades and a canopy of green from Hampstead Heath, this corner of north-west London feels both timeless and continually evolving. At its heart lies Hampstead Heath — nearly 800 acres of rolling meadows, ancient woodland and panoramic city views from Parliament Hill. Beloved by swimmers, walkers, and picnickers alike, it offers a rare expanse of nature within such easy reach of the city.
The mixed bathing ponds are particularly iconic — offering a ritualistic, all-season dip that’s become synonymous with the area’s free-spirited charm. Hampstead is steeped in architectural beauty. Its winding streets are lined with everything from Regency villas and Arts and Crafts cottages to 20th-century masterpieces. Modernist gems such as Erno Goldfinger’s house on Willow Road and the Isokon Building speak to the area’s long-standing relationship with creativity and progressive design. The area has long been a magnet for writers, artists, and thinkers. Freud’s final home, now the Freud Museum, sits on Maresfield Gardens, while Keats House and Burgh House offer glimpses into the neighbourhood’s storied past. The Everyman Cinema on the High Street, originally built in 1880, remains one of London’s most beloved independent screens — a place where you’re as likely to see a cult classic as the latest arthouse release.
Hampstead’s food scene is quietly confident. Locals linger over pastries at Karma Bread or pick up provisions at the Hampstead Butcher, while restaurants such as L’Antica Pizzeria da Michele and La Cage Imaginaire offer refined yet relaxed dining. Hampstead’s pubs are rich in character — from the ivy-clad charm of The Flask and the cosy corners of The Holly Bush to the refined warmth of The Wells Tavern and the garden calm of The Spaniards Inn. The High Street offers an elegant mix of independent boutiques, design shops and well-curated chains, alongside essentials like Gails, Whole Foods, Bayley & Sage and plenty more. Hampstead Station (Northern Line) connects directly to the West End and City, while nearby Hampstead Heath Overground provides access to East London and beyond.







































































